WIRELESS AMR WATER METER (LoRa) DN15~ 25 (Valve Control)
Contents
Ⅰ. Overview
Ⅱ. Technical parameters
Ⅲ. Operation Description
Ⅳ. Installation instructions
Ⅴ. Transportation & storage
Ⅵ. Disclaimer & Warranty
Ⅴ.Transportation & Storage
1.Transportation:The product should be transit by vehicles without strong vibration after the encasement and avoid being approached and affected by rains, frost, fog, placing as per sign―This side up and need to be prevented from damage of squeeze and strike. Environmental conditions of transport to comply with JB/T9329 standard.
2.Storage:The meters should be stored at dry, ventilated indoor environment and in which forcible magnetic field action doesn’t exist and air must be of no corrosive medium. Ambient temperature 5℃~50℃, relative humidity ≤90%
Ⅵ.Disclaimer & Warranty
If the seal is damaged or incomplete, the company will not assume warranty liability. And the company does not assume other related responsibilities beyond the water meter (including, but not limited to, responsibility for water metering disputes due to water meter faults or errors).
One year free maintenance service offered with the whole flow meter since the delivery date. Lifetime maintenance, however, damage caused by the following operations excluded in the warranty:
1. The seal marks of the flow meter parts is opened or damaged
2. Parts of the flow meter are humanly damaged
3. Parts of the flow meter are approached by sun light, flooding, freezing and chemical pollutions
4. Debris and impurities not eliminated in the pipeline, which causes damage to the flow sensor
5. Cable of the temperature sensor being pulled apart, or the monitor is excessively rotated, causing the cable of the temperature sensor being pulled apart.
6. Damages and faults due to choosing the inappropriate product
model No.
Remarks: The battery of the flow meter is supposed to be changed by specially assigned person.Contact the factory if undervoltage arises.
Ⅳ.Installation instructions
1.Water meter with proper caliber should be choosed according to diameter of pipeline at installation site and principle of flow ≤ usual flow of meter
2. 10×DN straight pipe before meter and 5×DN straight pipe after meter should be reserved.
3. Installation position should be selected at site that facilitates dismounting and meter reading and avoid being approached by solarization, flooding, pollution and foreign magnetic interference. Rap meter and pipe up during freezing period and shut off the valve at inlet flow of meter when not in use, open up valve at outlet flow of meter and tap lest for meter be damaged by freezing and swelling
4. Debris like sand and grits should be prevented from entering the pipe line when installation (especially with new pipe section), which might lead to measuring faults
5. For accurate measurement’s sake, during installation, pipe line at outlet flow should be installed 0.5m higher than meter, valve should be installed at pipeline before water meter so that water supply can be stopped when meter need to be dismounted.
6.Water meter shouldn’t be directly connected to the pipeline, movable joints like couplings, connecting nuts, connecting pipe sealing washer are needed. Rough handling is forbidden when dismounting.
7.If the water meter installed in the boiler or solar water heater inlet pipe, should prevent the backflow of hot water caused damage to the water meter.
8, Water meter installation diagram:
LoRa wireless remote valve control water meter belong to high-tech products in the smart water meter, using of advanced wireless LoRa transmission technology, it transforms metered information of conventional mechanical water meter into electrical signal have it stored by micro-electronics control circuit. It is able to automatically read the metering data via wireless remote network and is also able to transfer the data to the back-office system (data center) after reading the meters. And it has the function of remote wireless control of the valve switch.
Ⅱ.Technical Parameters
1.Flow parameter
Nominal diameter DN(mm) | Range ratio Q3/Q1 | Max flow Q4 | Nominal flow Q3 | Transitional flow Q2 | Min flow Q1 |
m3/h | |||||
15 | R80 | 3.125 | 2.5 | 0.05 | 0.031 |
20 | R80 | 5 | 4 | 0.08 | 0.05 |
25 | R80 | 7.875 | 6.3 | 0.2 | 0.079 |
2.Wireless technical indicators
Power supply | lithium battery |
Power supply | 2.1V-3.6V |
Working frequency | 470-510MHz / 865-868MHz |
Transmit power | 50mW |
Battery Life | More than 6 years (Once reading data per day) |
Receiver sensitivity | -132dBm |
Dormancy current | 2.5uA |
Average current | 18uA |
Transmission distance | 1000m transmission distance(5Kbps) |
3, The maximum permissible error:
3.1.The maximum allowable error is ±5% from the low flow area including the minimum flow rate to the demarcation flow rate (exclusive).
3.2.From the high flow area including demarcation flow to overload flow (inclusive), when the water temperature is ≤ 30°, the maximum allowable error is ± 2%; when the water temperature is > 30°, the maximum allowable error is ± 3%.
4, working temperature: cold water meter: (0.1 ~ 30) °C; hot water meter: (0.1 ~ 90) °C.
5, Working pressure: ≤ 1.0MPa.
6, Pressure loss: ≤ 0.063MPa.
7, The installation environment: Class B.
8, Electromagnetic environment: E1 - residential, commercial and light industry.
9, Operating current: static electricity <19uA.
10, Flow profile sensitivity level: U10, D5.
Ⅲ.Operation Description
1. Before using this water meter, user must go to the management office of the management department to open an account and establish a file. After verifying the information is correct, it can be used; otherwise, it may cause unnecessary losses;
2. The frequency of wireless meter reading meter data is not more than 1 time/day, otherwise it will affect the service life of the battery;
3. If the water meter is submerged under water, it will greatly impair the ability of wireless transmission;
4. Record and check the reading of the mechanical water meter on a regular basis;
5. When you need to replace a new water meter, you need to contact the administrator to perform a replacement on the water meter management platform.

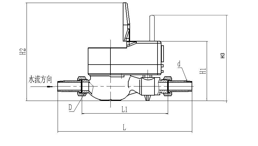
6. Water meter size
DN | L | L1 | B | H1 | H2 | H3 | Connection thread | |
mm | d | D | ||||||
15 | 258 | 165 | 90 | 120 | 200 | 165 | R1/2 | G3/4 |
20 | 299 | 195 | 90 | 120 | 200 | 165 | R3/4 | G1 |
25 | 345 | 225 | 90 | 120 | 200 | 165 | R1 | G1 1/4 |
Copyright © YomteY Group Co., Ltd. All Rights Reserved | Sitemap